Plan 180L Plans

Call for details price
  • 3 Beds
  • 2 Baths
  • 180 Size

 Description

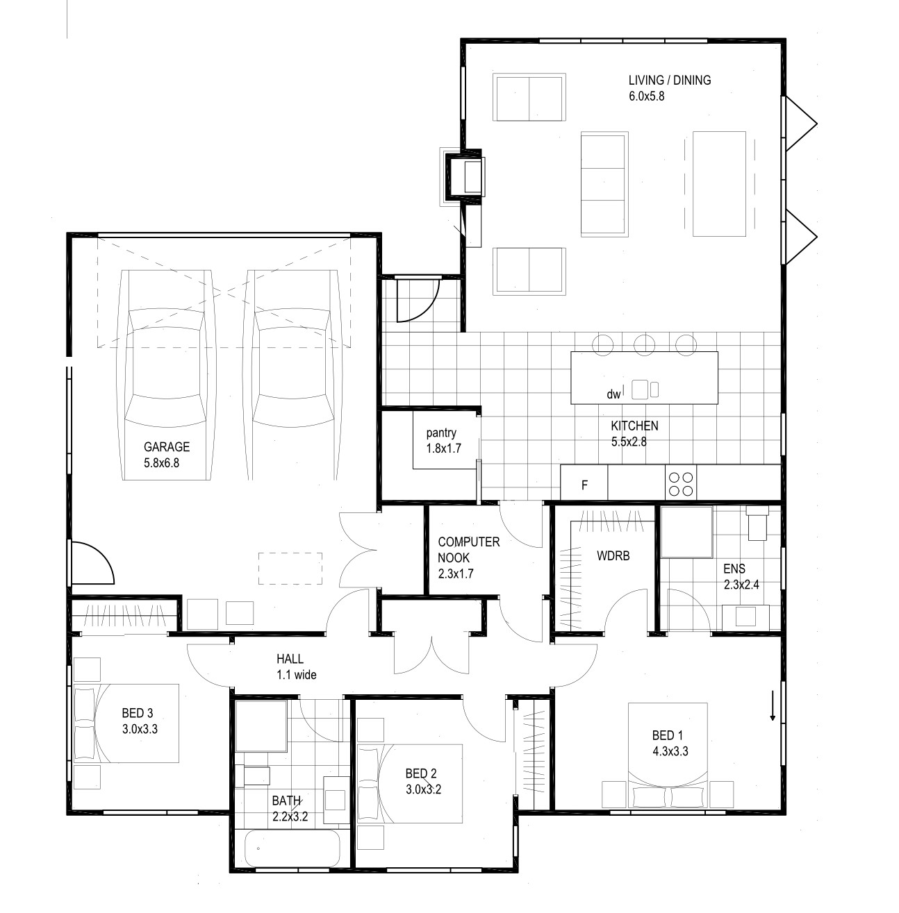
COMPACT, CLEVER DESIGN: Fits sections under 500m2

When you have a smaller section but still want the luxuries that a larger home provides, this compact three bedroom design fits the bill. Featuring open-plan living with large bi-fold or sliding doors that open on two sides to create separate outdoor living patios that maximise sun and shelter from prevailing winds. The stylish galley kitchen has a generous scullery, and there is a walk-through office/study nook that can easily be closed off with cupboards as well as a solatube to bring daylight. Three double bedrooms, with the master bathroom ensuite. The oversized garage is perfect for longer vehicles and storage.

If your site is tight, we have a 170m2 version with a smaller garage.

ALL our homes come with quality fixtures and fittings and a 10 Year Builders Warranty. We work with you to design homes that work for your lifestyle and budget. All our plans can be modified - and this is often required on smaller sites. Talk to us about how we can design a home that works for your lifestyle, your section and your budget. 

ALL PLANS COPYRIGHT HOMEBUILD HOMES LTD

 Share

Facebook   Tweet

 Features

Plan Information

Bed: 3
Bath: 2
Size: 180.00

 Tell a Friend

       

  Request more Details

Search properties

  • Details
  • -
  •