Plan 140B4 Plans

$308,500.00
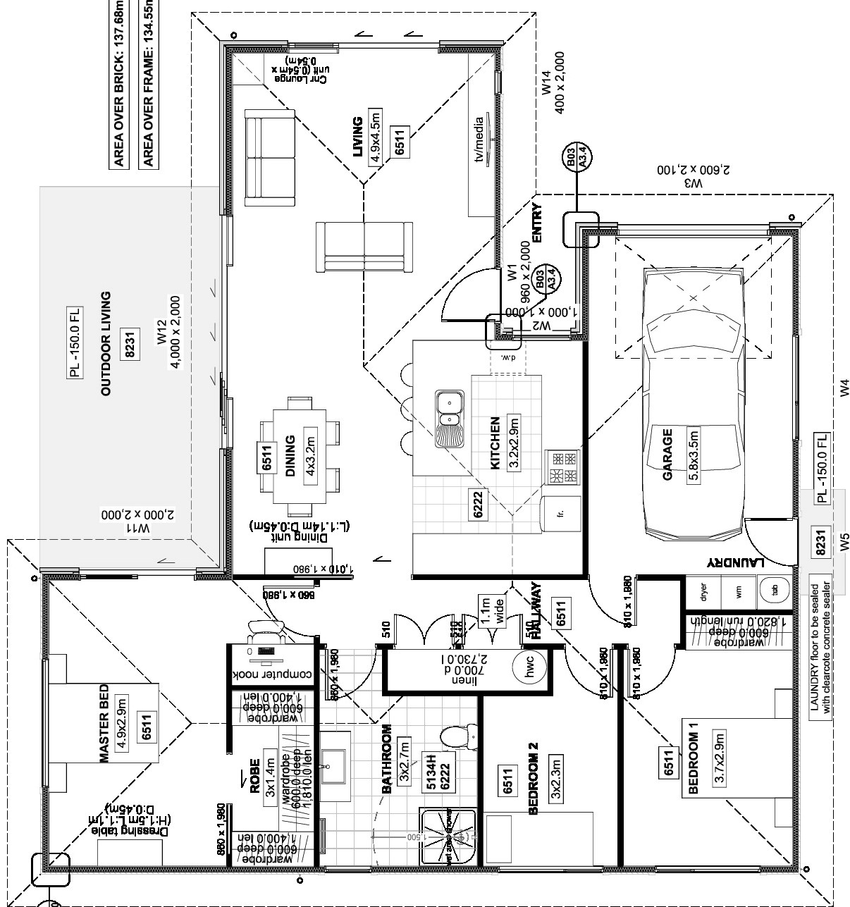
  • 3 Beds
  • 2 Baths
  • 138 Size

 Description

Designed specifically for a smaller site, this home is perfect for urban infill housing. It features a generous open plan living area maximizing indoor/outdoor flow, three bedrooms, master with WIR, bathroom and study nook. Single internal access garage.

 Share

Facebook   Tweet

 Features

Plan Information

Bed: 3
Bath: 2
Size: 138.00

Garage Information

Garage description: Single internal access garage.

 Tell a Friend

       

  Request more Details

Search properties

  • Details
  • -
  •