The Barnhouse | Sun & Fun Plans

$ 485,000
  • 4 Beds
  • 2 Baths
  • 145 Size

 Description

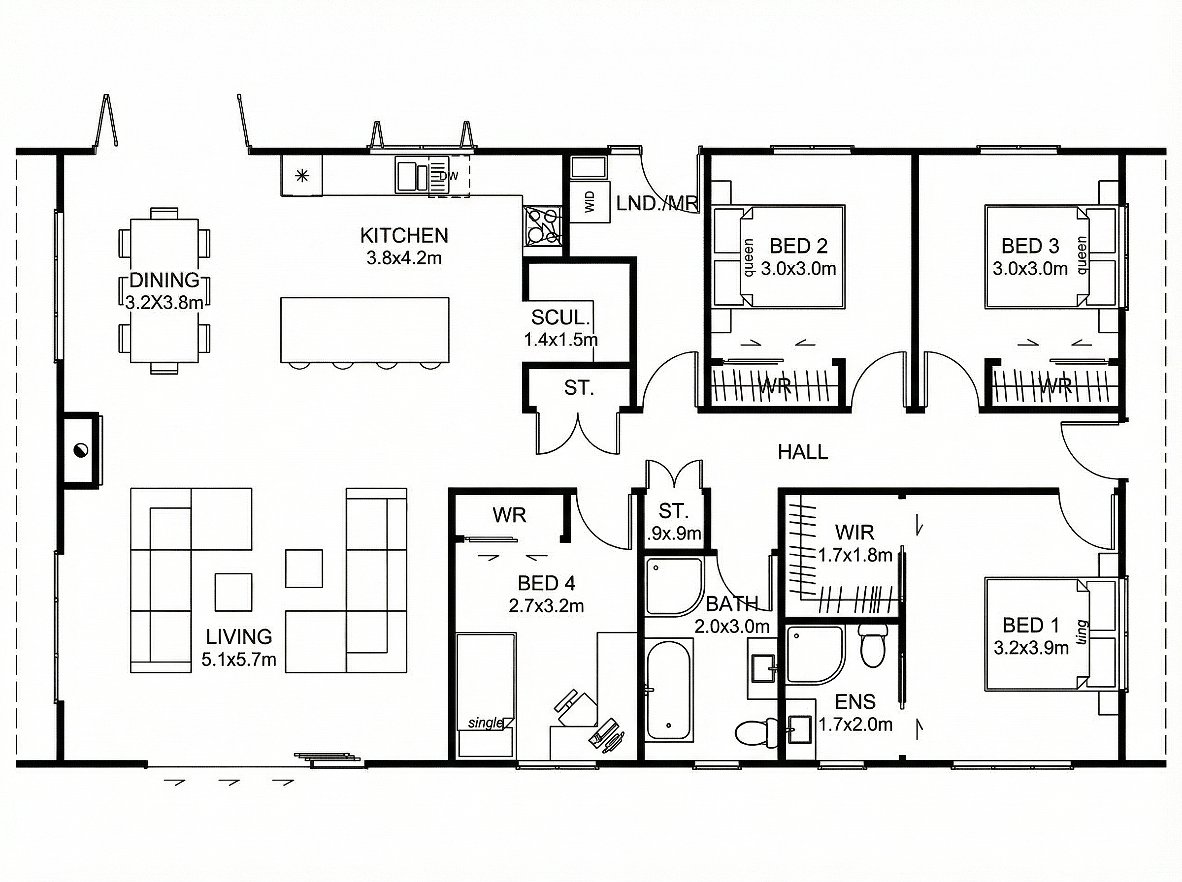
PLAN 145N. A stunning contemporary barn-style home that proves class and individuality doesn't have to cost the earth.

This perfect family home that can sit equally well in town or country, has all the features you'd expect from a new build. Featuring 4 spacious double bedrooms, 2 roomy bathrooms and a large open plan living/dining/kitchen with scullery. It would also make for a real money-earning rental!

→ Location is everything

The best orientation for this house is on a north-south axis so the surprisingly spacious and light living areas get all day sun. Indoor/outdoor access in the morning and afternoon and at least one area is sheltered from any wind at any time. The simple shape is also better for retaining heat thus saving you on those expensive winter heating bills.

→ Add ons and extras
This plan can easily be modified to include a double garage which would enlarge it to around 180m2.

 

All plans ©Homebuild Homes Ltd

 Share

Facebook   Tweet

 Features

Plan Information

Bed: 4
Bath: 2
Size: 145.00

 Tell a Friend

       

  Request more Details

Search properties

  • Details
  • -
  •