Plan 195B6 Plans

$ 500,000
  • 3 Beds
  • 2 Baths
  • 195 Size

 Description

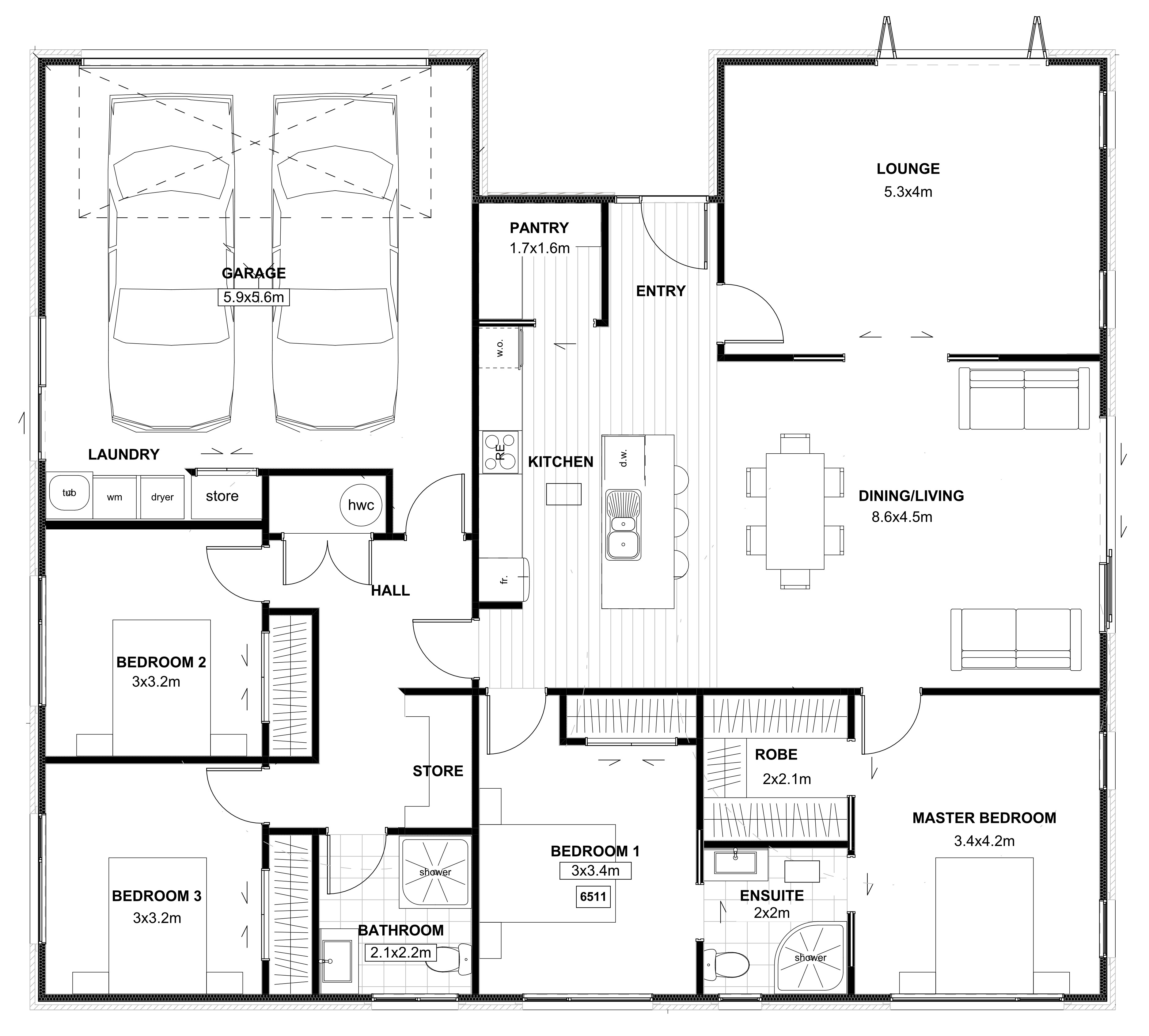
STYLE SAVER: Stylish, cost effective design that fits tight and subdivided sites.

Contemporary styled compact four bedroom family home that even with some extra features such as the entertainers kitchen with scullery and a gable roofline over the lounge is still excellent value.

This cleverly designed home fits smaller and some subdivided sites due to it’s simple square shape, which is also a cost effective way to design. The simple shape literally makes this home thousands of dollars cheaper than other plans of the same size. With a stylish combination of brick and linea on the exterior and a gable roofline over the lounge for impact, this plan proves that style and savings can go hand in hand.

We’ve minimized hallways and garage spacing and put this into the living rooms and bedrooms. Featuring open plan kitchen/dining/living and a separate lounge. This plan comes with all the features you expect in a modern new build - custom designed kitchen with Fisher & Paykel appliances, master bedroom with ensuite and walk in wardrobe, and a spacious bathroom with a choice of fixtures.

The three factors that affect cost are size, complexity of design (this is a simple shape), and level of specification. Stick with our standard specification - which includes good quality fittings and fixtures from reputable brands - to keep your costs under control.

ALL our homes come with quality fixtures and fittings and a 10 Year Builders Warranty. We build homes that cost you less without compromising on the quality. We use reputable established supply chains for all our products, and there are several options in our standard price range. Our kitchens are custom designed - you work with the designer to get the kitchen to suit your needs.

ALL PLANS COPYRIGHT HOMEBUILD HOMES LTD

 Share

Facebook   Tweet

 Features

Plan Information

Bed: 3
Bath: 2
Size: 195.00

 Tell a Friend

       

  Request more Details

Search properties

  • Details
  • -
  •