SOLD: 3 beds, 2 baths – Feilding House and Land

382 Churcher St, Feilding, 4814, Manawatu-Whanganui, Manawatu
SOLD
  • 3 Beds
  • 2 Baths
  • 165 Size

 Description

SOLD: 3 bed, 2 bath Feilding Home – a similar design could be yours!

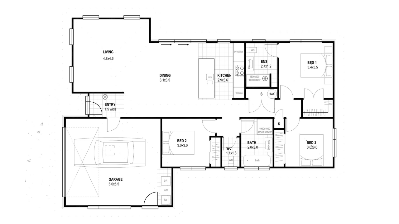
This three bedroom, two bathroom home located centrally in Feilding was recently sold – but the design could be yours! 

This stylish three bedroom two bathroom home oozes space and charm, and sits amongst other quality homes in Feilding's most popular new area. 

The open plan living areas are a sun catcher from morning till evening, and the stylish kitchen features quality brands of appliances and fixtures. The three double bedrooms flow nicely from the living space, with the master bedroom in the prime sun catching spot. The section is a spacious but manageable size and comes complete with a concrete patio, grass and basic planting - ready for you to stamp your mark, or just enjoy as it is. Fully insulated garage complete with carpet.

→ Like the design? 

If you want to know more about this plan, or if you are interested in knowing what plan could fit on the back of your section, contact us. We offer a no obligation, free section appraisal. 

→ Builder's Warranty 

All our homes come wIth quality fixtures and fittings and a 10 Year Builders Warranty. We build homes that cost less without compromising quality. We use reputable, established supply chains for your security and our kitchens are custom designed.

ALL PLANS COPYRIGHT HOMEBUILD HOMES LTD

 Share

Facebook   Tweet

 Features

Plan Information

Bed: 3
Bath: 2
Size: 165.00

 Location

 Tell a Friend

       

  Request more Details