SOLD: 2 bed Townhouse – Feilding House and Land

382 Churcher St, Feilding, 4814, Manawatu-Whanganui, Manawatu
SOLD
  • 2 Beds
  • 1 Baths
  • 114 Size

 Description

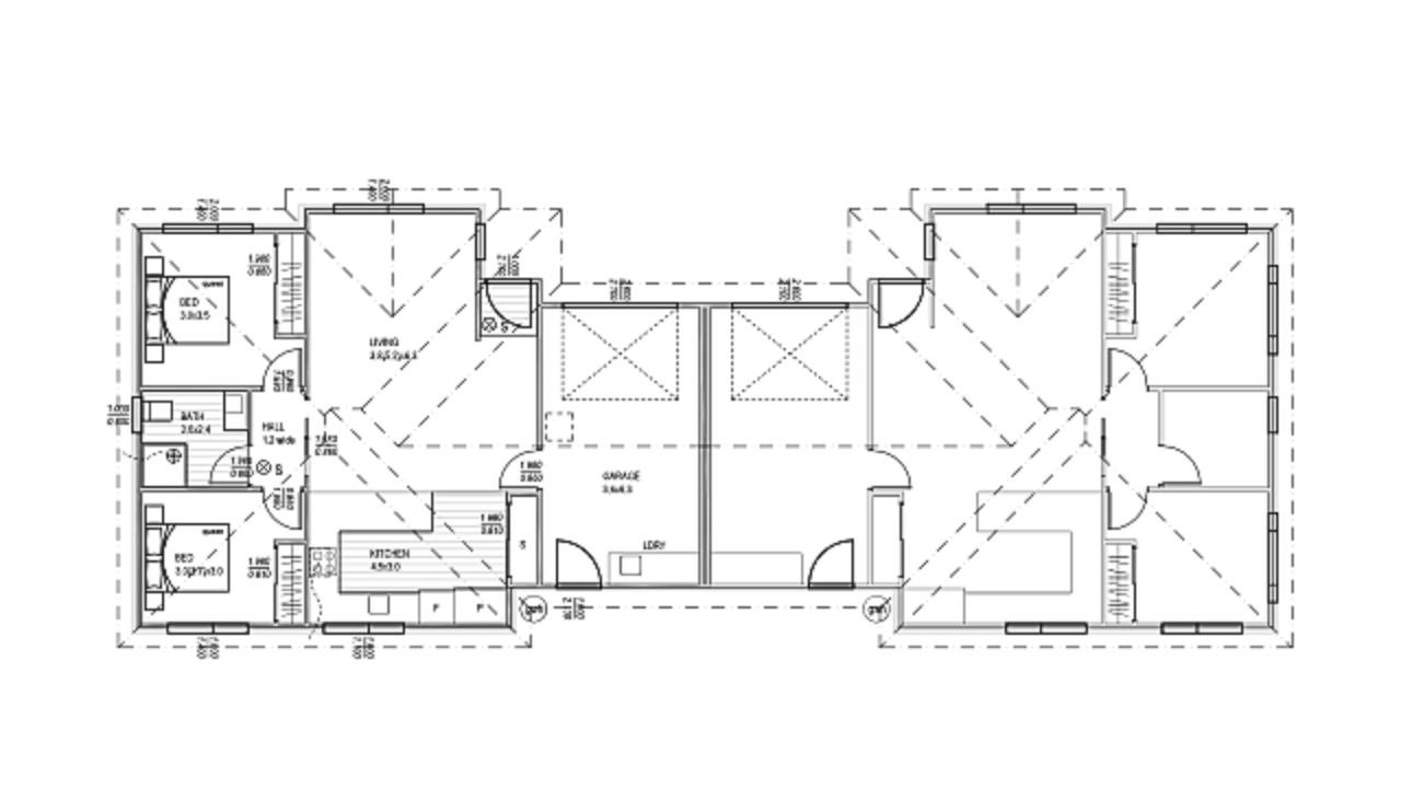
SOLD: 2 bed, 2 bath Feilding Townhouse – a similar design could be yours!

Unfortunately this four bedroom, two bathroom home located centrally in Awapuni was recently sold – but the design could be yours! 

If you need to downsize but still want your independence and security, then this stylish, compact two bedroom unit design is for you. Cleverly designed to maximise space, the homes feature two bedrooms and a generous open-plan living area with heatpump. The custom designed kitchens are in light, contemporary colours and feature a stone benchtop and come with Fisher & Paykel appliances. The bathrooms in each home have a level entry tiled shower to future proof living. The easy care section will be landscaped and will feature raised garden beds with a combination of privacy screening and open areas. Churcher is a top street in Feilding, and it is located amongst quality homes.

→ Like the design? 

If you want to know more about this plan, or if you are interested in knowing what plan could fit on the back of your section, contact us. We offer a no obligation, free section appraisal. 

→ Builder's Warranty 

All our homes come wIth quality fixtures and fittings and a 10 Year Builders Warranty. We build homes that cost less without compromising quality. We use reputable, established supply chains for your security and our kitchens are custom designed.

All our homes come wIth quality fixtures and fittings and a 10 Year Builders Warranty. We build homes that cost less without compromising quality. We use reputable, established supply chains for your security and our kitchens are custom designed.

ALL PLANS COPYRIGHT HOMEBUILD HOMES LTD

 Share

Facebook   Tweet

 Features

Plan Information

Bed: 2
Bath: 1
Size: 114.00

Garage Information

Garage description: Single

Land Information

Land Holding Type: Freehold

 Location

 Tell a Friend

       

  Request more Details