6 Hof Lane, Foxton House and Land

BUILDING STARTS SPRING
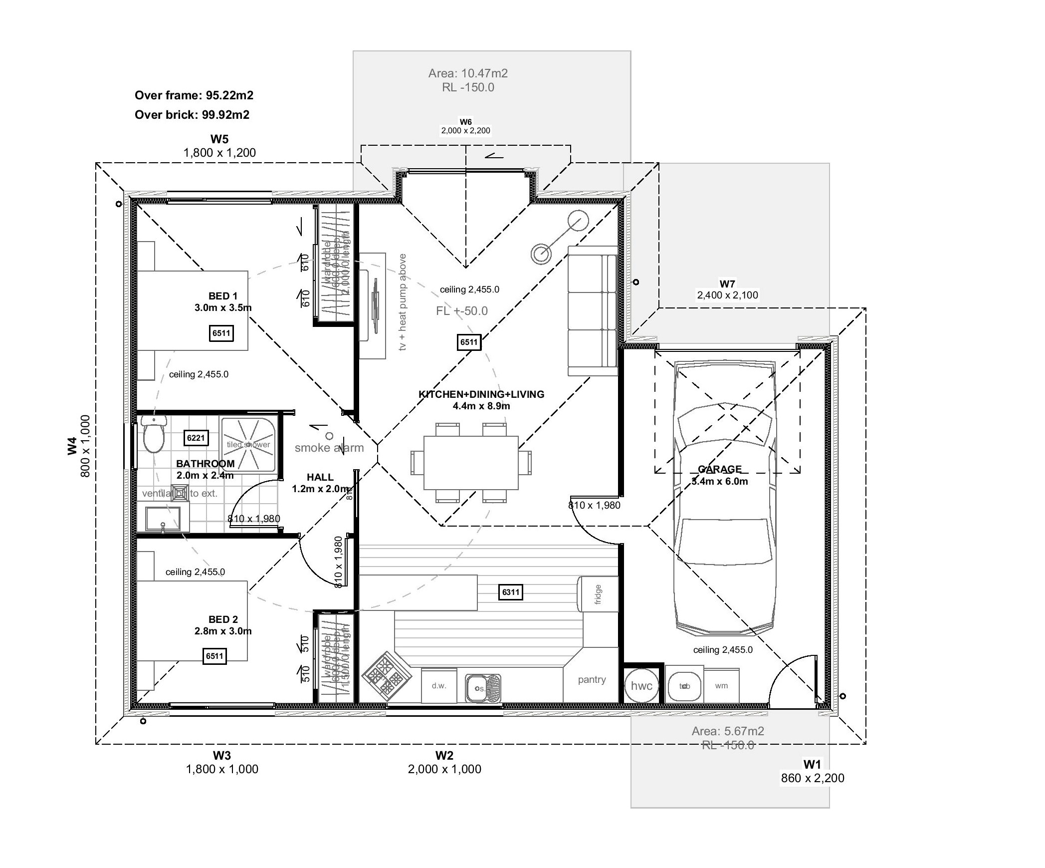
  • 2 Beds
  • 1 Baths
  • 100 Size

 Description

COMPLETION JUNE 2026

 

Discover contemporary comfort in the heart of Foxton. This standalone, 103m2 home sits within a quality six-lot subdivision by Homebuild Homes, an established building company known for thoughtful design, quality fixtures, and enduring craftsmanship. The result is a home that blends everyday practicality with refined detail.

Quality fixtures and finishes throughout, crafted with care

 Key features

+Two well-proportioned bedrooms and a single modern bathroom
+ Open-plan living that feels spacious and inviting
+ Custom-designed kitchen with a stone benchtop and premium fittings
+ Tiled walk-in shower and a spacious, well-appointed bathroom
+ Insulated, carpeted single garage for comfort and convenience
+ Private north-facing outdoor courtyard – perfect for sun and outdoor living

 What makes this home special

+ Designed for easy living: a clever, contemporary layout that maximises space and natural light
+ A premium kitchen centerpiece with clean lines, durable surfaces, and ample storage
+ A sense of room to breathe in the living area, plus a seamless flow to the outdoor space
+ A low-maintenance, single-level home in a coveted Foxton locale
+ Modern features and a smart floor plan in a desirable Foxton location
+ Low maintenance, easy-care landscaping, and a single garage for convenience

→ Location perks

+ Part of a sought-after six-lot development by Homebuild Homes
+ Walkable to Foxton’s main street and ingredients of daily life
+ Minutes from New World
+ Friendly neighbours

→ Lifestyle options

+ Suitable for first-home buyers, down-sizers, or professionals seeking low-maintenance living in a vibrant town
+ Ideal for entertaining or enjoying peaceful evenings in a private courtyard

This home is currently under construction, and will be ready for you to move in June this year. The asking price is for early birds, and may change.

→ Like the design? 

Contact us and we can work with you to create a similar stunning home on land of your own.

→ Builder's Warranty 

All our homes come with quality fixtures and fittings and a 10 Year Builders Warranty. We build homes that cost less without compromising quality. Our homes and kitchens are custom designed and we only use reputable, established supply chains for your added warranty security on products and materials

ALL PLANS COPYRIGHT HOMEBUILD HOMES LTD

 Share

Facebook   Tweet

 Features

Plan Information

Bed: 2
Bath: 1
Size: 100.00

Garage Information

Garaging: 1
Garage description: Internal Access

Land Information

Subdivision: 266m2
Land Holding Type: Freehold

 Tell a Friend

       

  Request more Details